интернет газета №1 в Кривом Роге
БЕСПЛАТНО ПОДАТЬ ОБЪЯВЛЕНИЕ
ПЛАТНО РАЗМЕСТИТЬ РЕКЛАМУ
 
Все разделы  |  Недвижимость  |  Продажа  |  Дома   Долгинцевский  |  Кривой Рог  |  Все регионы

Продаж 4кімн. будинку на Довгинцево,

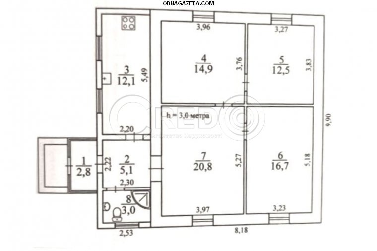
вул. Краєвидна (раніше Попова), район станції Новоблочна. Міцний, цегляний будинок загальною площею 87, 9м. кв. обладнана кухня 12м. кв., санвузол з душовою кабіною. капітальний гараж, господарські будівлі. 7, 5 соток приватизованої землі. 37 000$ тел. 0679821719. Кривой Рог
04.09.2025 [314 просмотров]
Подобные объявления Кривого Рога - Продается дом в п. Цементников. Участок 14 соток, кадастр. есть.... Вашему вниманию предлагается красивый дом с гаражом, со всеми коммуникациями... Продам дом в два этажа, долгинцевский район, ост. тупиковая. 70... Продаж будинку на Дружбі по вулиці Сільськогосподарська. Затишний та дуже... будиночок з приватизованою земельною ділянкою 10 соток в межах міста....
продажа здания и помещения в Кривом Роге, детские коляски Кривого Рога, электроника в Кривом Роге, домашний текстиль в Кривом Роге
Приятное время провождение
Куплю холодильники, стиральные машины
АКСЕССУАРЫ ДЛЯ ТЕЛЕФОНОВ
МОРЕ СУХОФРУКТОВ "VICTORY PLAZA"
Оригінальна наливна парфумерія Кривй Ріг
Высококачественное диз. топливо rls.ua
Центр Кузовного Ремонта 067 932 50 69